Integrated BIM Services
Enables early issue detection, better visualization, time savings, and enhanced collaboration by creating a virtual building model before finalizing designs.
Experienced in Architectural, Structural, MEPF, and HVAC
One roof solutions to General Contractors, Builders, and Engineering firms
We provide Material Quantity Takeoff (QTO) from BIM (Building Information Modeling) models with accuracy and efficiency in construction estimating
For Architecture
For Structure
MEPF services






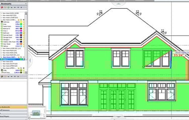
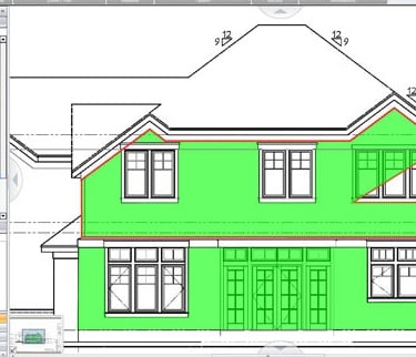
Architectural Design Services
3D BIM modeling & realistic Rendering
Architectural coordination models
Quantity take-off
Architectural shop drawings preparation
Architectural object libraries/ families
Walk-through
Complete Structural BIM model
Complete Steel Structure detailing and erection sheets
Light-gauge steel modeling
Complete shop drawing and details of building parts
Quantity and material take off
Precast modelling /detailing
CAD drafting to BIM MEP 3d model service
Quantity take off
Clash deduction
Shop drawings
As-build drawings
Lifecycle Management
Energy Analysis
Scan to BIM
Scan to BIM for historical monuments
Scan to BIM train station and airport
Scan to BIM residential & commercial building
Scan to BIM oil and gas plant
Accuracy verification
As-built documentation
3D visualization
Revit Family Content Creation
Architectural content creation
Structural content creation
MEP content creation
Parametric design families
Detail specification
Library organization
Training and support
Accurate Measurement
Detailed Quantity Lists
Clarity in Markups
Collaboration
Cross-Referencing
Timely Delivery
Quality Assurance
Quantity take-off






Expert BIM solutions for your construction needs.
P: +91-9423466714
© 2024. Savoceane Tech Engineering Pvt. Ltd. All rights reserved.


